Opis projektu
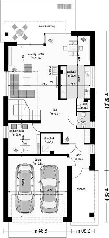
Projekt domu Salsa to jeden z projektów z serii domów wywodzących się z projektu „Party” (Party, Party 2, Rumba, Biba, Fokstrot, Samba, Tango). Salsa to dom jednorodzinny przeznaczony dla cztero-sześcioosobowej rodziny. Dom parterowy z poddaszem użytkowym, o prostej bryle przykrytej dwuspadowym dachem, z wystającą nieco poza główną bryłę parterową częścią garażu. Projekt przeznaczony jest na wąską działkę, która nie pozwala na budowę budynku o szerokiej elewacji frontowej. Minimalna szerokość działki to 16,9 metrów, ale zamieniając w jednej z bocznych elewacji okna na luksfery możemy posadowić dom na działce o szerokości poniżej 16-tu metrów (nawet na działce o szerokości 14,6 m - jeśli jest zgoda na zbliżenie się ścianą bez okien na 1,5 m od granicy). Prosta spokojna bryła domu połączona z nowoczesną formą i zastosowanymi materiałami daje atrakcyjną sylwetkę „Salsy”. Front domu ozdabia duży podcień wejściowy, z reprezentacyjnymi drzwiami. Od strony ogrodu mamy z kolei częściowo zadaszony taras, piękne przeszklone otwarcie przestrzeni dziennej na ogród, oraz taras –balkon poddasza. Nowoczesna stonowana kolorystyka domu pozwoli „Salsie” właściwie wkomponować się w dowolne sąsiedztwo. Wnętrze domu zaprojektowano sytuując garaż obok wejścia, od frontu. Z sieni przechodzimy szerokimi szklanymi drzwiami do holu. Hol ma bardzo poręczną wnękę z dużą szafą przy przedsionku. Z holu otwiera się nam piękny widok na salon z pustką nad częścią jego powierzchni i nad schodami będącymi ozdobą wnętrza. Obok mamy bardzo praktyczną kuchnią typu „wagon”, oraz przestronny aneks jadalny. Salon i jadalnia łączą się przeszklonymi drzwiami z tarasem i ogrodem. Z holu możemy dostać się jeszcze do dodatkowego pokoju (np. gabinet), oraz wc. Na poddaszu mamy piękny holl- antresolę, widoczną z salonu na dole. Antresola stanowi most łączący apartament rodziców (z sypialnią, bardzo ładną garderoba, łazienką i balkonem-tarasem ogrodowym), z częścią poddasza przeznaczoną na dwie sypialnie dzieci, łazienkę i pralnię. Sypialnie dziecięce również mają wyjście na drugi balkon-taras. Dom ma prostą bryłę, nowoczesną architekturę, piękne wnętrze z pustką nad salonem - no i przede wszystkim jest to doskonały projekt na wąską działkę. Do tego dom ma prostą konstrukcję - będzie niedrogi w budowie i późniejszym utrzymaniu. Wąska działka nie musi być wcale wadą - wystarczy zdecydować się na właściwy projekt - oczywiście najlepsza jest Salsa :) ! Zapraszamy!